Package Include
Drexel SL30, SL40, SL50 Forklift Operators Manual
Language
English
Format
PDF
Total Number of pages
115
Publication Number
F-447-0308 March,2008
Compatible
All windows and mac systems
Additional Requirement
User needs to Install PDF Reader Software
Shipping Policy
Download link by high speed web server Total Download size 17 mb
With This Original Factory Workshop Manual The Technician can Find and Solve any problems encountered in the operation of your Deutz Engine Models of :
Compatible Model :Drexel SL30/40/50 (SepEx SWINGMAST MODEL)
This manual contains original instructions, verified by the manufacturer (or their authorized representative)
This is Original factory pdf manual and This pdf workshop Manual very clear and it is 100% printable version, contains with high quality images and diagrams,
This is True Electronic pdf copy, not scanned version
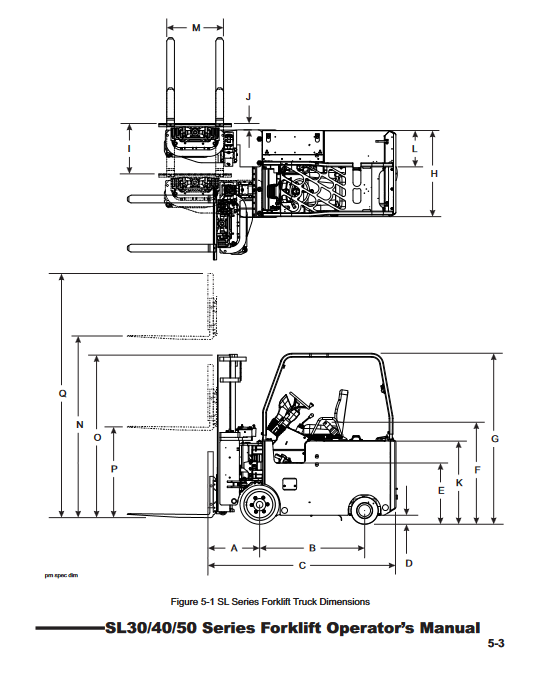
Enhance your operational efficiency with the Drexel SL30, SL40, and SL50 Forklift Operators Manual. This comprehensive guide provides essential information on safe and effective forklift operation, maintenance procedures, and troubleshooting tips tailored specifically for these models. With clear instructions and detailed illustrations, this manual ensures that operators can maximize productivity while minimizing risks, making it an indispensable resource for any warehouse or industrial setting. Invest in your team’s safety and performance today with this essential manual






