Package Include
Hitachi ZX27U,30U,35U Excavator Workshop and Technical Manual
Language
English, Japanese
Format
PDF
Total Number of pages
1694
Compatible
All windows and mac systems
Additional Requirement
User needs to Install PDF Reader Software
Shipping Policy
Download link by high speed web server Total Download size 13 mb
Compatible Machine Models
Hitachi ZX27U Excavator
Hitachi ZX30U Excavator
Hitachi ZX35U Excavator
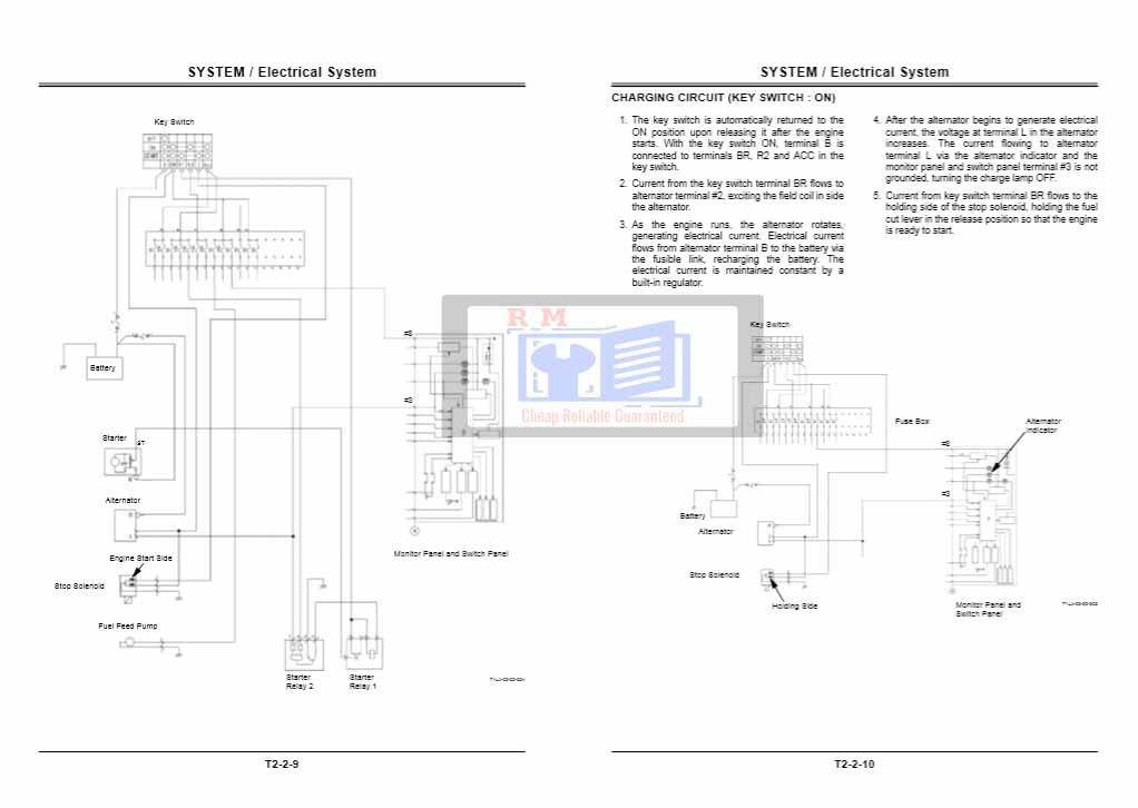
The Hitachi ZX27U, ZX30U, and ZX35U Excavator Workshop and Technical Manual is the official OEM service guide designed to support professional technicians, mechanics, and equipment owners with the complete maintenance, troubleshooting, and repair of these compact excavator models. This manual provides in-depth technical data, system overviews, and step-by-step procedures essential for keeping your Hitachi mini excavators in peak operating condition
Key Benefits:
-
Factory-accurate repair instructions and technical specifications
-
Supports both minor repairs and full component overhauls
-
Saves time with clear diagrams and step-by-step guidance
-
Reduces downtime with fast, accurate diagnostics
-
Ideal for dealerships, service shops, and fleet operators
Whether you’re performing routine service or conducting complex repairs, the Hitachi ZX27U, ZX30U, and ZX35U Workshop & Technical Manual is the trusted reference to ensure professional-grade maintenance and reliable machine performance





