Package Include
JCB 2CX, 2DX, 210, 212 Backhoe Loader Service Repair Manual
Language
English
Format
PDF
Total Number of pages
458
Publication Number
9803-3250
Compatible
All windows and mac systems
Additional Requirement
User needs to Install PDF Reader Software
Shipping Policy
Download link by high speed web server Total Download size 50 mb
Compatible Machine Models
JCB 2CX, JCB 2DX, JCB 210, JCB 212 [From Machine Serial No. 290000]
Compatible Machine Models
JCB 2CX Backhoe Loader
JCB 2DX Backhoe Loader
JCB 210 Backhoe Loader
JCB 212 Backhoe Loader
Compatible Serial Number Range : From Machine Serial No. 290000
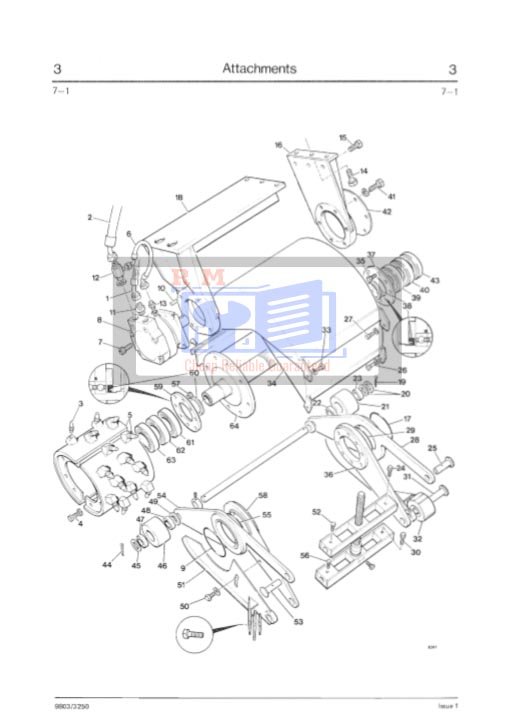
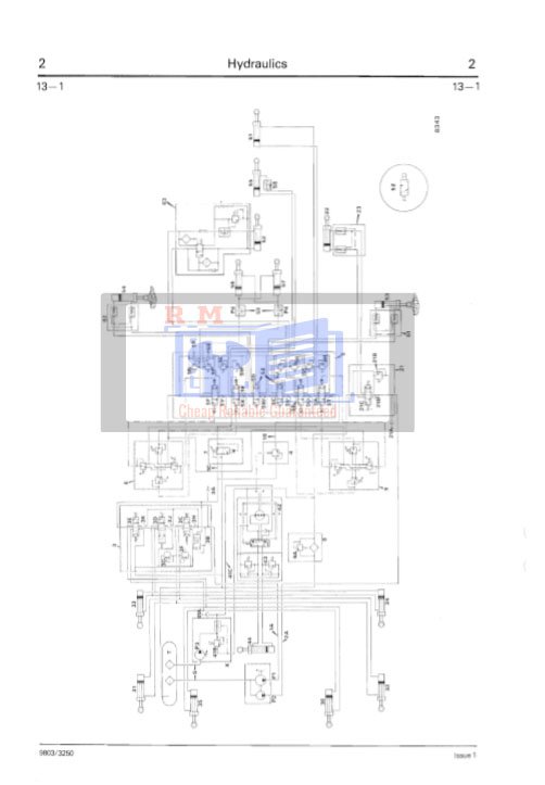
The JCB 2CX, 2DX, 210, and 212 Backhoe Loader Service Repair Manual is the comprehensive OEM guide for servicing, maintaining, and repairing these versatile JCB backhoe loaders. Designed for professional technicians, mechanics, and machine owners, this manual provides step-by-step procedures, technical specifications, and detailed diagrams to ensure your equipment remains in peak working condition.
Key Features:
-
OEM factory manual – detailed, accurate, and model-specific
-
Covers full diagnostics, maintenance, and major component repair
-
Clear instructions with exploded views and technical illustrations
-
Minimizes downtime and improves equipment reliability
-
Ideal for workshops, service technicians, and equipment owners
Ensure peak performance and extended service life of your JCB 2CX, 2DX, 210, or 212 backhoe loader with this complete service repair manual — your trusted resource for professional maintenance and repair.





