Package Include
JCB 467 Wheel Loader Service Repair Manual
Language
English
Format
PDF
Total Number of pages
746
Publication Number
9813-0500
Compatible
All windows and mac systems
Additional Requirement
User needs to Install PDF Reader Software
Shipping Policy
Download link by high speed web server Total Download size 79 mb
Overview
With This Original Factory Service Repair Manual The Technician can Find and Solve any problems encountered in the operation of your JCB Wheel Loader Models of :
467 Wheel Loader
The Factory was highly recommended use this manual for Technicians before you touch your JCB Wheel Loader
This manual contains original instructions, verified by the manufacturer (or their authorized representative)
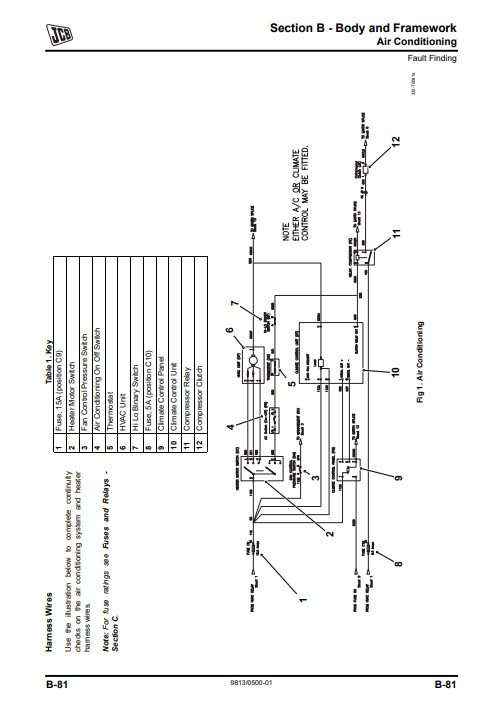
This Original factory pdf manual and pdf service Manual very clear and it is 100% printable version, contains with high quality images and circuit diagrams
DOWNLOAD SAMPLE OF THIS PDF MANUAL
The JCB 467 Wheel Loader Service Repair Manual is an essential resource for maintaining and repairing your equipment efficiently. This comprehensive guide provides detailed instructions, diagrams, and troubleshooting tips to ensure optimal performance and longevity of your wheel loader. With clear, step-by-step procedures, you can confidently tackle repairs and maintenance tasks, saving time and reducing downtime. Invest in this manual to enhance your operational efficiency and keep your JCB 467 running smoothly for years to come







