Package Include
JCB Vibromax VM RANGE TIER II Service Repair Manual
Language
English
Format
PDF
Total Number of pages
370
Publication Number
9803-9500
Compatible
All windows and mac systems
Additional Requirement
User needs to Install PDF Reader Software
Shipping Policy
Download link by high speed web server Total Download size 28 mb
With This Service Repair Manual The Technician can solve any problems encountered in the operation of your JCB Road Roller
Compatible Machine Model : JCB Vibromax VM RANGE TIER II Road Roller
TO CONFIRM THIS IS THIS SERVICE MANUAL COMPATIBLE WITH YOUR MACHINE MODEL PLEASE DOWNLOAD SAMPLE
[the_ad id=”22123″]
The JCB Vibromax VM Range Tier II Service Repair Manual is the official factory-issued guide for servicing and repairing JCB’s Vibromax single drum rollers equipped with Tier II compliant engines. Designed for use by professional technicians and service personnel, this comprehensive manual provides everything needed to keep your machine running at peak performance.
Machine Coverage:
-
JCB Vibromax VM Series (Tier II engine variants)
Includes models such as VM75, VM115, VM132, and others within the Tier II range
(Check compatibility for your exact model)
Manual Type:
-
OEM Service / Repair Manual
-
Format: PDF or Print (depending on supplier)
-
Language: English
Manual Contents Include:
-
Complete machine specifications and service data
-
Engine maintenance and repair procedures (Tier II diesel engines)
-
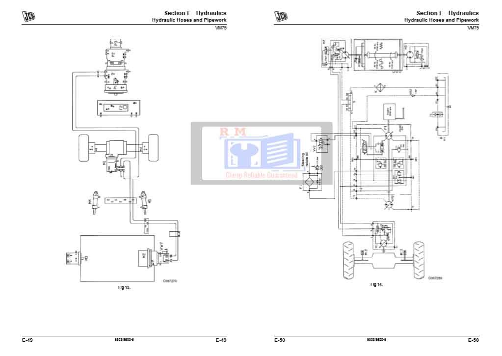
Hydraulic system diagnostics and servicing
-
Drum and vibration system troubleshooting
-
Travel system (axles, drive motors) repair
-
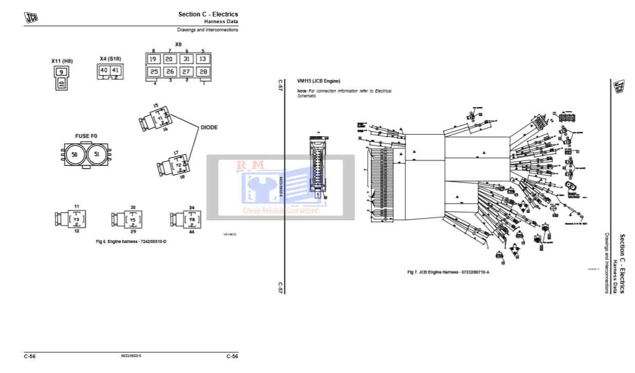
Electrical wiring diagrams and fault tracing
-
Control system adjustments and calibrations
-
Routine maintenance intervals and lubrication charts
-
Safety systems and operator interface servicing
Key Benefits:
-
OEM-level accuracy for professional-grade repairs
-
Step-by-step instructions with clear illustrations and diagrams
-
Reduces downtime and improves service efficiency
-
Supports both preventative maintenance and major repairs
Whether you’re maintaining a single roller or managing a fleet, the JCB Vibromax VM Range Tier II Service Repair Manual provides the trusted information you need to ensure machine reliability, safety, and performance in demanding work environments.







